MB-77HS Drzwi balkonowe podnoszono-przesuwne
Drzwi podnoszono-przesuwne MB-77HS to gwarancja wygodnego wyjścia na balkon, taras czy do ogrodu. Tak wysoki komfort użytkowania drzwi MB-77HS zapewniają m.in. bezbarierowy próg (tzw. próg zerowy) oraz wąski słupek.
MB-77HS oferuje szeroki wybór schematów układów drzwi, które umożliwiają różnorodne aranżacje . Dzięki temu użytkownicy mogą dostosować drzwi do swoich indywidualnych potrzeb estetycznych i funkcjonalnych. Z MB-77HS warto puścić wodze fantazji!
W systemie podnoszono-przesuwnym skrzydło drzwi najpierw delikatnie unosi się nad podłogą za pomocą ruchu klamki, co ułatwia jego przesuwanie po prowadnicach. Opór podczas ruchu zmniejsza się, przez co użytkowanie drzwi jest zdecydowanie łatwe.
MB-77HS – najlepsze parametry
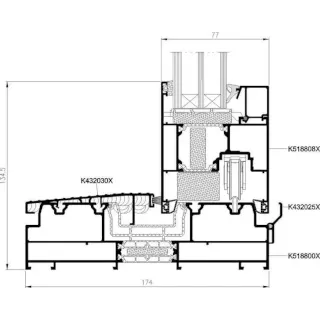
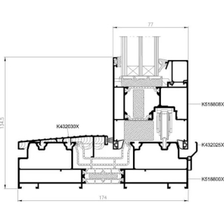
MB-77HS charakteryzuje się bardzo dobrymi właściwościami cieplnymi i akustycznymi, zapewniając wysoką szczelność. MB-77HS ma najlepsze parametry i spełnia wszelkie wymagania stawiane tej grupie produktów.
Konstrukcja profili pozwala na tworzenie dużych drzwi wypełnionych szkłem jedno- lub dwukomorowym. To produkt idealny zarówno dla budynków jednorodzinnych, jak i luksusowych apartamentów czy hoteli.
Dzięki opcjonalnemu profilowi kompensacyjnemu możliwe jest zredukowanie ewentualnych ugięć stropu nawet do 20 mm. Dodatkowo możliwość zastosowania automatyki sprawia, że drzwi MB-77HS idealnie wpisują się w koncepcję inteligentnego domu.
Dla inwestorów
- Są to najpopularniejsze drzwi podnoszono-przesuwne w ofercie Aluprof, co świadczy o ich niezawodności i wysokiej jakości
- Bardzo dobre warunki termiczne, które przekładają się na oszczędność energii
- Zastosowanie bezbarierowego progu sprawia, że system jest bardzo wygodny w użytkowaniu, co jest jedną z kluczowych kwestii dla osób o ograniczonej mobilności oraz rodzin z małymi dziećmi czy osób starszych
- Dostępność rozwiązań z zakresu automatyki, znacznie ułatwiających obsługę drzwi
- Możliwość tworzenia dużych konstrukcji przekraczających 3 metry przy jednoczesnym bezpieczeństwie użytkowania dzięki mechanizmowi „Comfort close”
- Bogate opcje kolorystyczne pozwalają na dopasowanie drzwi do indywidualnych preferencji oraz charakteru budynku
Dla architektów
- Nowe perspektywy aranżacyjne dzięki możliwości osiągania dużych konstrukcji
- Możliwość tworzenia dużych przeszkleń pozwala na wprowadzenie do wnętrza dużej ilości światła naturalnego
- Niski próg zapewnia swobodne przejście na taras, tym samym zwiększając funkcjonalność przestrzeni i pozwalając na lepsze wykorzystanie dostępnej powierzchni
- Możliwość otwarcia naroża budynku stanowi ciekawe rozwiązanie architektoniczne
Dla producentów
- MB-77HS jest popularnym produktem, o który często pytają klienci
- Szeroka gama okuć daje producentom dużą swobodę w tworzeniu konstrukcji
- Możliwość regulacji górnej ościeżnicy za pomocą profilu kompensacyjnego zachowuje płynność pracy konstrukcji przy ewentualnym ugięciu stropu
- Listwy przyszybowe w trzech wariantach wizualnych: prostokątne – Standard, zaokrąglone – Prestige oraz kształtowe – Style
- Solidna szczelność gwarantuje oszczędność energii
- Kompatybilność z innymi rozwiązaniami Aluprof, w tym z MB-86




